トップ
製品・支援サービス
O7CAD
パース作品集
製品・支援サービス紹介動画
お客様インタビュー
推奨システム環境
Cambridge
HOPWEB!
カタリノ
SpeedPlanner
設計支援 eES
会社情報
オーセブンとは
会社概要
所在地
採用情報
イベント・セミナー
お客様サポート
研修
WEB研修予約サイト
WEBセミナー
図面代行作図サービス
お問い合わせ窓口
O7CADコンテスト
プロ部門
応募サイト
前回受賞作品
学校部門
受賞作品
お知らせ
接続ツール
遠隔サポート
サリバン先生
WEBデモ
サポート
資料請求
ご相談
トップ
製品・支援サービス
O7CAD
Cambridge
HOPWEB!
カタリノ
SpeedPlanner
設計支援 eES
パース作品集
製品・支援サービス紹介動画
お客様インタビュー
推奨システム環境
会社情報
オーセブンとは
会社概要
所在地
採用情報
イベント・セミナー
お客様サポート
研修
WEB研修予約サイト
WEBセミナー
図面代行作図サービス
お問い合わせ窓口
O7CADコンテスト
プロ部門 応募サイト
プロ部門 前回受賞作品
学校部門 受賞作品
お知らせ
遠隔サポート
/サリバン先生
WEBデモ・サポート
ユーザー様専用サイト
資料請求
ご相談
PRODUCTS
#【デザイン】 アートの部屋
トップ »
2015年までのお知らせ
»
#【デザイン】 アートの部屋一覧
» Artの部屋(52)
Artの部屋(52)
エクステリア造園 CAD オーセブンCAD 8 Art のギャラリーです。
■足元を照らす照明が美しい純和風のエクステリア
1.全体パース
2.全体パース(夜)
3.和風の庭
4.和風の庭(夜)
4.路地風の情緒あるコーナー
5.照明でさらに奥行きを持たせます
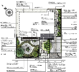
8.平面図
#【デザイン】 アートの部屋の一覧へ